歡迎光臨~連雲港好色先生官方版水表有限公司官(guān)方(fāng)網站            English
服務熱線服務熱線:

0518-82344888

您的位置:網(wǎng)站首頁 產品(pǐn)中心(xīn) . 小口徑機械水表(biǎo)係列

小口徑機械水表係列

容積幹式水表PD95TAR-15E

用  途:用來記錄流經自來(lái)水管道飲用冷水的總量。
工作條件:
*水壓:不大於1.6MPa
*水溫:不超過50℃
特  點(diǎn):
*旋轉活塞式(shì)
*直讀計數器
*磁力傳動並防磁
*可在任意位置安裝
*結構堅固。
*本水表技術參數符合ISO 4064國(guó)際標準和GB/T778-2007國家標準。
示值誤(wù)差:
從分界流量到過(guò)載流量為±2%;
從最小流量到分界(jiè)流(liú)量(不包括分界流量)為±5%.
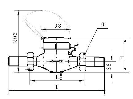
性能和參數 PERFORMANCE AND DIMENSIONS
名(míng)稱 DESCRTPTION
單位UNIT
技 術 參 數 與 尺 寸
HYDRAULIC DATA AND DIMENSIONS

公稱口徑 NOMIMAL SIZE

mm

DN15

最大流量Q4 (ERROR LIMIT±2%)

m3/h

3.125

公稱流量Q3(ERROR LIMIT±2%)

m3/h

2.5

分界流量Q2 (ERROR LIMIT±2%)

l/h

25

最小流量Q1 (ERROR LIMIT±5%)

l/h

15.6

最(zuì)小讀數MIN.READING

1

0.05

最大讀數MAX.READING

m3

99999.9999

最大工作壓力(lì) MAP

MPa

1.6

壓損 △P at Q3

MPa

0.063

I

mm

165

L

mm

245

G

inch

G3/4B

H

mm

118

重量
WEIGHT

不帶連(lián)接件WITHOUT CONNECTIONS

kg

1.45

帶連接件WITH CONNECTIONS

kg

1.28

 外形尺寸 OVERALL DIMENSIONS 

           

                流量誤差曲線 FLOW-ERROR CURVE                                                壓力損失曲線 PRESSURE LOSS CURVE


上一條下(xià)一條
掃描二維碼關注我們關閉
二維碼
好色先生官方版-好色先生污视频-好色先生黄版本-好色先生tv版下载 好色先生官方版-好色先生污视频-好色先生黄版本-好色先生tv版下载